.jpg)
3305 Welles Street, Decatur, IL
$159,900
Pending
3 Beds
1 Bath
1,840 SqFt
1.12 Acres
2 Car Garage
About 3305 Welles Street
Nice 3 Bedroom Raised Ranch on Just Over An Acre :- ) Living Room Is Light & Bright With Fireplace ~ Neutral Colors Thru-Out~~ Located At The End Of The Street , Nice Quite Setting ~You Can Sit on the Patio Or Back Screened Porch , Great For Entertaining and Watching The Deer & Wildlife ~~AND There Are Even A Few Fruit Trees In The Yard :- ) There Is An Extra Garage/Outbuilding That Can Be Used As A Workshop Or For Extra Storage. Some of The Updates Include A/C 2022, Water Heater 2022, Water Treatment System 2022, Roof 2016 Quick Possession Could Be Possible ~~Don't Miss Your Chance to Have Some Space At A Good Price ~~ Call To Make An Appointment To Make This Your New Home~
Facts & Features
MLS® # | 6255134 |
---|---|
Price | $159,900 |
Cost Per Square Foot | $87 |
Bedrooms | 3 |
Bathrooms | 1.00 |
Full Baths | 1 |
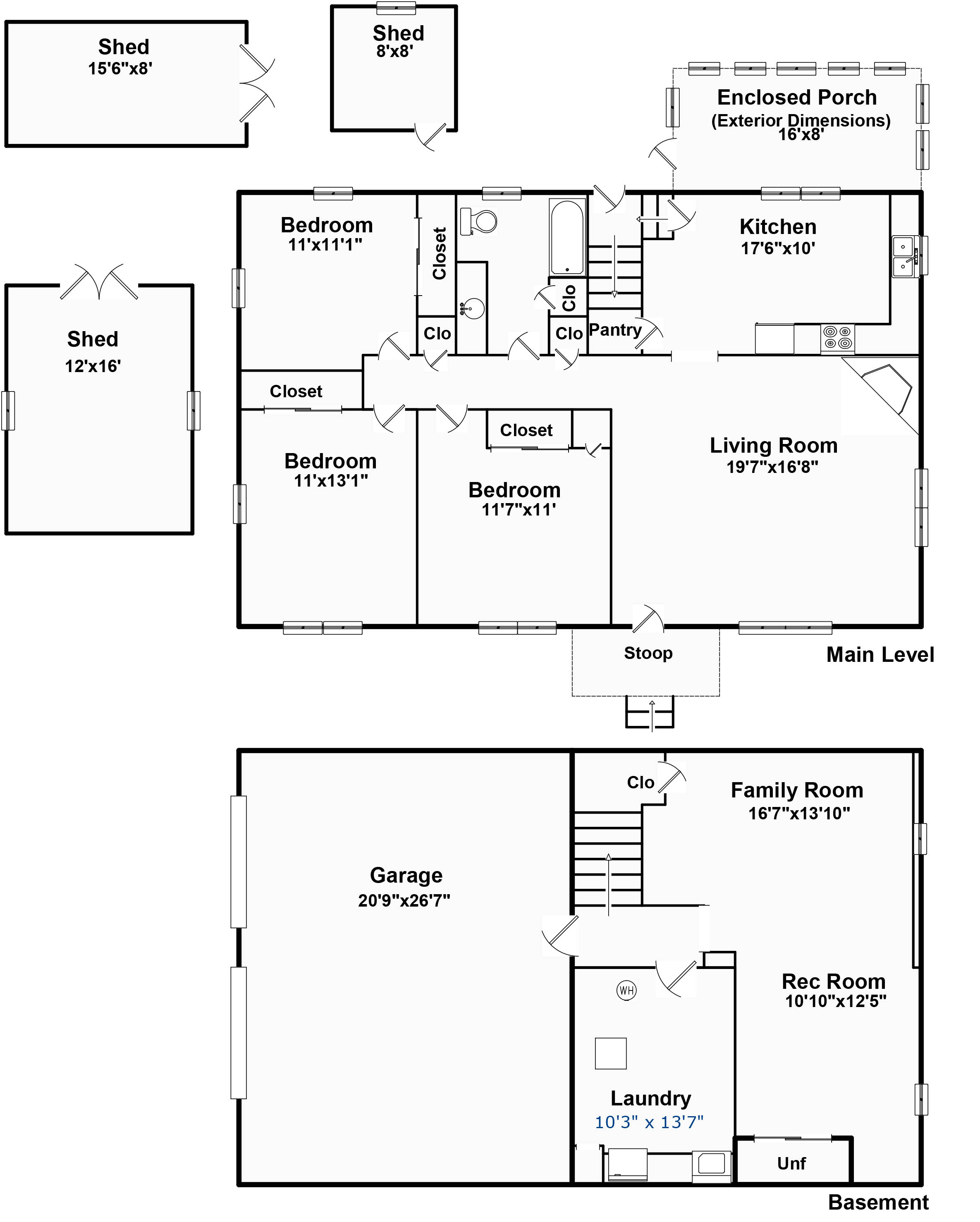
Total Finished Square Feet | 1,840 |
Total Finished Above Grade | 1,232 |
Main | 1,232 |
Basement Total | 631 |
Basement Finished | 608 |
Basement Unfinished | 23 |
Acres | 1.12 |
Year Built | 1963 |
Type | Single Family |
Sub-Type | Single Family Residence |
Style | Ranch |
Status | Pending |
Taxes | $3,537 |
Tax Year | 2024 |
Community Information
Address | 3305 Welles Street |
---|---|
City | Decatur |
County | Macon |
State | IL |
Zip Code | 62521 |
Amenities
Parking | Attached, Garage |
---|---|
# of Garage Spaces | 2 |
Is Waterfront | No |
Has Pool | No |
Interior
Appliances | Dryer, Dishwasher, Gas Water Heater, Range, Refrigerator, Washer, Water Purifier |
---|---|
Heating | Forced Air, Gas |
Cooling | Central Air |
Has Basement | Yes |
Basement | Finished, Unfinished, Full |
Fireplace | Yes |
# of Fireplaces | 1 |
Fireplaces | Family/Living/Great Room, Gas |
# of Stories | 1 |
Stories | One |
Exterior
Exterior Features | Deck, Shed |
---|---|
Lot Dimensions | 413 x 155.36 |
Roof | Shingle |
Construction | Vinyl Siding |
Foundation | Basement |
School Information
District | Decatur Dist 61 |
---|
Additional Information
Date Listed | September 15th, 2025 |
---|---|
Days on Market | 9 |
Zoning | RES |
Listing Details
Agent | Colleen Brinkoetter |
---|---|
Office | Brinkoetter REALTORS® |